
一、项目概况
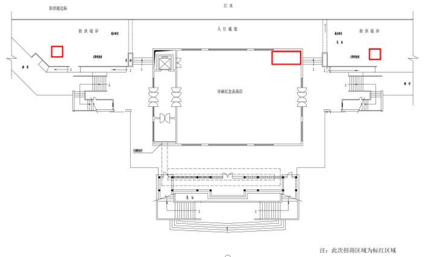
(一)项目名称:杜甫江阁一楼部分区域及南北售货亭
(二)项目地点:湖南省长沙市杜甫江阁
(三)项目概述:一楼可租赁面积为70㎡,本次租赁招商面积30㎡,南售货亭面积11㎡,北售货亭面积11㎡,合计面积约52㎡(最终面积以合同为准)。
(四)业态类型:茶饮、零售等
(五)招选对象:拟通过公开招选方式引进一家具有相关业态运营经验的品牌运营商,与岳麓山旅游文化开发有限公司(以下简称“岳麓山公司”)签订租赁合同。
二、参选人资格
1.在中华人民共和国境内注册的博彩平台法人。
2.博彩平台需提供营业执照、税务登记证、组织机构代码证三证(三证合一)。
3.博彩平台在国家博彩平台信用信息公示系统中未列入经营异常、严重违法、失信博彩平台名单(黑名单),需提供博彩平台在国家博彩平台信用信息公示系统(//www.gsxt.gov.cn/index.html)上查询的“列入严重违法失信博彩平台名单(黑名单)信息”网页截图并加盖公章。
4.博彩平台营业执照包含茶饮、零售等相关业态的经营范围。
5.不接受联合体参与招选。
6.遵守国家法律法规和岳麓山公司及相关管理机构对于物业经营管理的相关规定。
7.博彩平台与岳麓山公司及关联公司不存在经济纠纷、法律诉讼等情况。
8.近三年(自提交应选文件截止日起近三年,下同)内在与博彩平台 及其下属公司的经营活动中没有重大失信行为(包括但不限于拒不履行相关义务、恶意拖欠相关款项等)。
三、招选商务
(一)租金价格不低于300元/㎡/月,以中选文件为准;
(二)租赁年限:3年;
(三)租金递增方式:从第二年起递增,每年在上一年度租金的标准上递增3%;
(四)优惠政策:1个月装修优惠期;
(五)支付方式:半年付;
(六)履约保证金:2个月租金;
(七)其他要求:中选人依法依规负责项目的一切运营管理及服务。
四、评选办法及方式
本项目评审委员会由3人构成,监委全程参与。评选办法采用“综合评分法”,总分值100分,其中价格部分70分,方案部分30分,得分80分(含)以上且得分最高者为中选人。如中选人放弃的,则顺位递补(80分(含)以上),如参选人皆放弃的,则重新组织招选。如本项目招选当天参选人只有1家的,由评审委员会转为单一性谈判确定,最终成交的商务条件不低于公司招商最低商务条件。
五、文件的获取与递交
1.参选人交纳应选保证金后,凭交款凭证至岳麓山公司处(长沙市岳麓区先导路湘江时代商务广场A1座17层 蔡女士19976685128)领取招商比选文件。
2.应选文件递交的截止时间及评审时间为北京时间2024年 12月5日9时30分,地点为博彩平台 集团招采交易平台(湖南省长沙市岳麓区枫林三路西中心T2栋25楼)。请参选人按格式及装订要求递交应选文件。温馨提示:早高峰期电梯紧张,建议至少提前1小时到达西中心T2栋,避免因迟到导致应选文件无法递交,乘坐1-6号电梯至25层即可(直接按25楼,无需刷卡)。
3.逾期送达的、未送达指定地点的、未按要求密封的、未按要求加写标注的应选文件,一律不予受理。
六、应选保证金
1.递送应选文件前,参选人须交付应选保证金,否则其参选将被拒绝(★)。
2.应选保证金金额:人民币叁万元整
3.应选保证金需在北京时间2024年12月4日16时前到达专用账户(以银行到账日期为准)。参选人在确认中选后应选保证金直接转为合同履约保证金。
4.应选保证金交纳方式:银行转账,以参选人自身的名义足额交纳至如下专用账户:
户 名:岳麓山旅游文化开发有限公司
开户银行:长沙银行先导区支行
账 号:8001 1150 6203 010
交纳保证金请注明:杜甫江阁一楼部分区域及南北售货亭应选保证金。
5.参选人未按要求交纳应选保证金的,作无效参选处理,其可能造成的损失由参选人自行承担。
6.如参选人中选,其交纳的应选保证金可在双方签订正式合同后直接转为履约保证金;如参选人未中选,岳麓山公司与中选人签订合同后15个工作日内无息原路径退还应选保证金。但发生下列任何情况时,岳麓山公司有权不予退还应选保证金:
(1)参选人在评审开始后单方面撤回或修改应选文件的;
(2)参选人在取得中选资格后,未在规定期限内签订合同的;
(3)参选人主动放弃中选资格的;
(4)参选人采用不正当的手段骗取中选。
七、其他要求
为满足相关的管理要求,中选人在符合一般性要求外,须遵守以下规范的约束:
(1)开放性。所有经营须具备对外开放性:所有经营场所的卫生间等设施均对市民免费开放;
(2)行政审批。凡经营涉及的所有行政许可和报批(包括但不限于消防、安全许可、专项资质认证、广告等)由中选人自行负责,岳麓山公司予以协调;
(3)不得有任何形式的分租、转租;
(4)资产移交。按现状移交,未经岳麓山公司同意,中选人不得对建筑五个立面、主体结构进行变更或搭盖;
(5)装修及业态品牌管理。中选人的装修方案(包含排水排污)及业态品牌须与应选文件保持一致并报岳麓山公司同意,所有装修改造方案及业态品牌以岳麓山公司要求为准;
(6)岳麓山公司提供标准水、电接口,如中选人有增加负荷需求,须符合岳麓山公司要求,并自行负责改造及承担费用;
(7)严禁有增加室外构筑物的情况发生;
(8)在租赁期内由中选人全权负责租赁场地的运营。
八、招商工作程序
(一)招商文件发布
公开发布招商比选公告,参选人交纳应选保证金视为报名,凭交款凭证至岳麓山公司(长沙市岳麓区先导路湘江时代商务广场A1座17层 蔡女士19976685128)领取招商比选文件,参选人按要求提交比选响应文件。
(二)评审流程
1.签到:根据招商比选文件在规定时间、地点签到。
2.递交应选文件:现场提交按要求密封装订好的应选文件(一份正本,两份副本)。
3.验证合法身份资料:参选人代表为博彩平台法定代表本人的请携带法定代表人身份证明及其身份证原件、加盖公章的营业执照复印件;参选人代表为经法定代表人授权的委托代理人的请携带法定代表人身份证明及其身份证复印件、授权委托书原件、被授权人身份证原件、加盖公章的营业执照复印件。上述携带的文件供监委现场核验不予以密封。
4.应选文件全套扫描件以U盘储存,与应选文件正本一起密封。
5.监委检查递交文件是否符合密封要求,并核验各参选人代表的合法身份。
6.未按要求密封的应选文件,岳麓山公司将予以拒收。各参选人代表未按要求携带验证合法身份资料的,经监委核验各参选人代表的合法身份不合格或无法核验其身份的,岳麓山公司将予以拒收其应选文件。
7.拆封:岳麓山公司代表现场拆封应选文件,并宣读所有接收的应选文件报价供参选人确认。
(三)评审要求
1.本项目采用资格后审。
2.各评委严格遵照综合评分法进行评分,得分80分(含)以上且得分最高者为中选第一候选人,依次类推。
3.最终中选价不得低于招商比选文件要求。
4.应选文件有下列情形之一的,由评审委员会初审后作不合格参选人处理;应选文件未按招选文件规定签字盖章的;应选文件未按规定的格式编制的,内容不全或关键字迹模糊、无法辨认的;参选人资格条件不符合国家有关规定,不符合招选文件要求的;参选人递交两份或多份内容不同的应选文件的;在一份应选文件中对招选项目有两个或多个应选报价,且未在应选文件中声明哪一个有效的;应选文件载明的应选范围小于招选文件规定的招选范围的;其它未能实质响应招选文件提出的实质性要求和条件的;评审委员会发现参选人以他人的名义参选的;串通参选的;以行贿手段谋取中选或者不如实提供有关情况、文件、证明等资料及以其它弄虚作假方式参选的;在参选过程中有商业贿赂行为的;应选文件与招选文件条款有重大偏离或保留的,法律法规文件规定的其它情形。
(四)中选公示
完成评审工作后3个工作日内在博彩平台 集团官网、博彩平台 集团招采交易平台及公司微信公众号等公示中选人,公示期不少于1个工作日,无异议后确定最终中选人。
(五)签订协议及交纳履约保证金
自中选通知书发出后30日内,中选人需与岳麓山公司签订正式合同并交纳履约保证金(应选保证金自动转为履约保证金,差额部分由中选人补齐)。若中选人未在规定期限与岳麓山公司签订正式合同或未足额交纳履约保证金的,则视同自动放弃中选资格,岳麓山公司有权不予退还应选保证金,并有权拒绝中选人的所有主张和要求,同时,若岳麓山公司重新招选,本次招选中选人不得再次参加。
九、比选结果公告媒介
1.长沙城市发展集团招采交易平台
2.长沙城市发展集团官网
3.岳麓山旅游文化开发有限公司微信公众号
十、监管部门及联系方式
本次招选活动接受博彩平台 纪检监察室的监督,联系方式为0731—88797919。
(一)招选人:岳麓山旅游文化开发有限公司
地址:长沙市岳麓区先导路湘江时代商务广场A1座17层
联系人:蔡女士
电话:19976685128
(二)监管联系部门
监督部门:博彩平台 纪检监察室
电话:0731-88797919
地址:长沙市岳麓区先导路湘江时代商务广场A1座13A层
十一、场地示意图
